Trong những năm gần đây, kiến trúc hiện đại đã trở thành xu hướng chủ đạo trong thiết kế nhà phố tại Việt Nam. Với sự tinh gọn trong hình khối, đề cao công năng sử dụng và tối ưu ánh sáng tự nhiên, những công trình theo phong cách này luôn mang lại cảm giác trẻ trung, tiện nghi và bền vững. Mẫu nhà 3 tầng hiện đại diện tích 5x15m được Việt Quang Group thiết kế cho gia đình anh Hoàng tại tỉnh Long An là một ví dụ điển hình cho cách vận dụng kiến trúc hiện đại vào không gian nhà phố diện tích vừa phải.
Dưới góc nhìn của kiến trúc sư, đây là mẫu thiết kế rất đáng tham khảo cho những gia đình muốn xây dựng nhà 1 trệt 2 lầu với chi phí hợp lý nhưng vẫn đảm bảo tính thẩm mỹ, công năng và phong thủy.
Tổng quan công trình – Quy mô và yêu cầu thiết kế
Anh Hoàng sở hữu lô đất 5x15m nằm trong khu dân cư mới của Long An. Nhu cầu của gia đình bao gồm:
- Thiết kế nhà 3 tầng theo phong cách hiện đại
- Không gian thoáng sáng, có nhiều cây xanh
- Mặt tiền tối giản nhưng nổi bật
- Công năng gồm sân trước, phòng khách rộng, nhà bếp thông thoáng, 3 phòng ngủ và khu vực sinh hoạt chung
- Ưu tiên ban công rộng để trồng cây
- Thi công trọn gói với chi phí hợp lý
Đây là bài toán quen thuộc mà Việt Quang Group – hotline 096 1993 915 – thường xuyên thực hiện, đặc biệt tại các tỉnh lân cận TP. HCM. Với diện tích 5x15m, kiến trúc sư cần tối ưu từng mét vuông để tạo nên không gian thoải mái cho cả gia đình nhưng không làm tăng chi phí xây dựng.
Phân tích phong cách kiến trúc – hiện đại và tinh gọn
Nhìn từ mặt tiền, công trình mang đậm đặc trưng của kiến trúc hiện đại: hình khối rõ ràng, các đường thẳng mạnh mẽ và sự tiết chế tối đa chi tiết trang trí. Tuy vậy, tổng thể vẫn giữ được sự mềm mại nhờ mảng xanh bố trí hợp lý và màu sắc hài hòa.
1. Hình khối
Công trình được chia thành các khối lớn theo chiều dọc:
- Khối ban công vuông vức ở tầng 2
- Khối lam mái tầng 3
- Các mảng tường ốp gạch xám tạo điểm nhấn
- Mảng kính rộng giúp mặt tiền thoáng và sang hơn
Phong cách hình khối này phù hợp với khí hậu Việt Nam, bền vững qua nhiều năm và dễ bảo trì.
2. Màu sắc
Tông màu chính gồm:
- Trắng
- Xám ghi
- Gỗ nâu ấm
Sự kết hợp này tạo cảm giác trang nhã, hiện đại và không bị lỗi thời. Việt Quang Group luôn ưu tiên những bảng màu trung tính cho nhà phố hiện đại để tăng tính thẩm mỹ và giá trị theo thời gian.
3. Vật liệu
Các vật liệu sử dụng trong mẫu nhà bao gồm:
- Gạch ốp xám cho điểm nhấn mặt tiền
- Cửa kính cường lực khung nhôm
- Lan can kính cường lực
- Lam trang trí chống nắng
- Hệ thống đèn LED âm trần
- Gỗ composite trang trí
Những vật liệu này đáp ứng tốt tiêu chí: đẹp – bền – tiết kiệm chi phí.
Mặt bằng công năng – tối ưu không gian cho nhà 5x15m
Công trình được thiết kế theo quy mô 1 trệt 2 lầu. Mỗi tầng được tính toán hợp lý theo nhu cầu sử dụng của gia đình anh Hoàng.
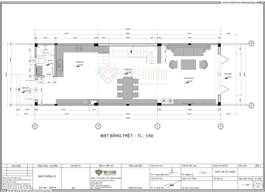
Tầng trệt
- Sân trước thoáng – đậu xe máy hoặc trồng cây
- Phòng khách rộng rãi
- Bếp và bàn ăn phía sau
- Khu vệ sinh cuối nhà
Không gian liền mạch giúp nhà thoáng, dễ di chuyển và phù hợp với sinh hoạt hàng ngày.
Lầu 1
- Phòng ngủ master có cửa kính lớn
- Phòng ngủ phụ
- Ban công rộng để trồng cây
- Vệ sinh chung
Tầng này ưu tiên ánh sáng tự nhiên nhờ hệ cửa kính và khoảng đệm ban công thoáng.
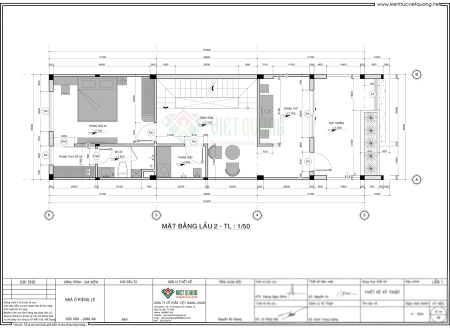
Lầu 2
- Phòng ngủ thứ ba
- Phòng thờ
- Sân thượng trước
- Khu giặt phơi phía sau
Không gian sinh hoạt gia đình được tách biệt rõ ràng, tạo sự riêng tư và tiện lợi.
Giải pháp ánh sáng và thông gió – ưu tiên hàng đầu của kiến trúc sư
Với diện tích 5x15m, nếu thiết kế thiếu hợp lý, ngôi nhà rất dễ bị bí và thiếu sáng. Việt Quang Group đã xử lý các vấn đề này theo những giải pháp chuyên môn:
1. Cửa kính lớn
Được bố trí ở mặt tiền và cửa sau giúp:
- Ánh sáng lan tỏa khắp không gian
- Tiết kiệm điện chiếu sáng ban ngày
- Mở rộng không gian theo chiều sâu
2. Ban công rộng nhiều cây xanh
Cây xanh giúp:
- Điều hòa không khí
- Tạo bóng mát tự nhiên
- Tăng tính thẩm mỹ
3. Lam chắn nắng tầng 3
Lam ngang giúp giảm nhiệt trực tiếp và tạo bóng đổ đẹp cho mặt tiền.
Giải pháp kỹ thuật – nền tảng đảm bảo chất lượng công trình
Việt Quang Group – hotline 096 1993 915 – luôn chú trọng yếu tố kỹ thuật khi thiết kế và thi công nhà phố. Công trình này được xử lý theo các tiêu chuẩn sau:
- Móng băng hoặc móng cọc tùy theo địa chất Long An
- Dầm sàn bê tông cốt thép đúng tiêu chuẩn
- Tường bao 20cm đảm bảo cách âm – chống nóng
- Hệ thống điện nước âm tường bền bỉ
- Chống thấm toàn bộ nhà vệ sinh – sân thượng – ban công
Nhờ đó, công trình không chỉ đẹp mà còn bền vững lâu dài.
Phong thủy – sự hài hòa được đặt lên hàng đầu
Nhà phố 3 tầng 5x15m của anh Hoàng được bố trí theo các nguyên tắc phong thủy cơ bản:
- Hướng cửa chính hợp mệnh gia chủ
- Phòng thờ đặt ở tầng trên cùng
- Cầu thang không chắn giữa nhà
- Phòng ngủ thoáng, tránh ánh nắng chiếu trực tiếp
- Bếp đặt vị trí vượng khí
Phối hợp giữa phong thủy và công năng là nguyên tắc thiết kế quan trọng của Việt Quang Group.
Đánh giá tổng thể – vì sao mẫu nhà này đáng tham khảo?
Dưới góc nhìn chuyên môn, mẫu nhà 3 tầng 5x15m này đạt chuẩn ở nhiều khía cạnh:
- Kiến trúc hiện đại – trẻ trung
- Mặt tiền sang trọng nhưng không phô trương
- Công năng đầy đủ cho gia đình 4–5 người
- Không gian sáng – thoáng – nhiều cây xanh
- Chi phí thi công hợp lý
- Phát huy tối đa lợi thế diện tích 5x15m
Đây là mẫu nhà phù hợp với nhiều gia đình trẻ đang sở hữu quỹ đất vừa phải và muốn xây dựng một tổ ấm bền vững, tiện nghi.
Việt Quang Group đồng hành xây dựng tổ ấm của bạn
Mẫu nhà 3 tầng hiện đại 5x15m của anh Hoàng tại Long An là minh chứng cho việc kiến trúc thông minh có thể tạo nên một không gian sống tuyệt vời, dù diện tích không quá lớn. Với đội ngũ kiến trúc sư chuyên sâu và quy trình thi công chuẩn kỹ thuật, Việt Quang Group luôn là lựa chọn đáng tin cậy cho khách hàng tại Long An, TP. HCM và khu vực lân cận.
Nếu bạn đang có nhu cầu thiết kế – xây dựng nhà phố 1 trệt 2 lầu hiện đại, hãy liên hệ Việt Quang Group qua hotline 096 1993 915 để được tư vấn chi tiết và nhận phương án tối ưu nhất.


























































































































































































